Fire Alarm System

Autor: Eftenie Andrei-Vlad Grupa: 333CA

Introducere

Ce face proiectul?

Acest sistem detecteaza prezenta fumului si a focului in mediul inconjurator, iar in cazul unei amenintari, activeaza o alarma sonora si afiseaza un mesaj de avertizare pe un ecran LCD.

Care este scopul lui?

Scopul proiectului este de a preveni situatiile periculoase cauzate de incendii prin alertarea rapida a persoanelor aflate în zona. Sistemul ofera un mod accesibil și automatizat de monitorizare a calitatii aerului in privinta riscurilor de incendiu.

Care a fost ideea de la care am pornit?

Ideea a pornit de la nevoia tot mai mare de solutii simple si eficiente pentru siguranta locuintelor sau spatiilor in care nu exista sisteme profesionale de detectie.

De ce credem ca este util?

Este util pentru oricine doreste o solutie low-cost si usor de implementat pentru siguranta proprie. Sistemul poate fi folosit in locuinte, ateliere, laboratoare sau birouri.

Descriere generală

Sistemul este compus din urmatoarele module:

  • Senzor de fum (MQ-2) - detecteaza prezenta fumului si emite un semnal analogic proportional cu concentratia de gaz.
  • Senzor de flacara (IR Flame Sensor) - detecteaza prezenta unei flacari si emite un semnal digital.
  • Buzzer - emite un semnal sonor in cazul detectarii fumului sau focului.
  • Display LCD 16×2 cu interfata I2C - afiseaza mesaje de stare si alerte.
  • Microcontroler (Arduino Uno) - citeste valorile de la senzori, proceseaza datele si controleaza iesirile.

Interactiunea dintre module:

  1. Senzorii transmit date catre microcontroler.
  2. Microcontrolerul proceseaza informatiile si determina daca exista pericol.
  3. In caz de pericol, microcontrolerul activeaza buzzerul si actualizeaza mesaj pe LCD.

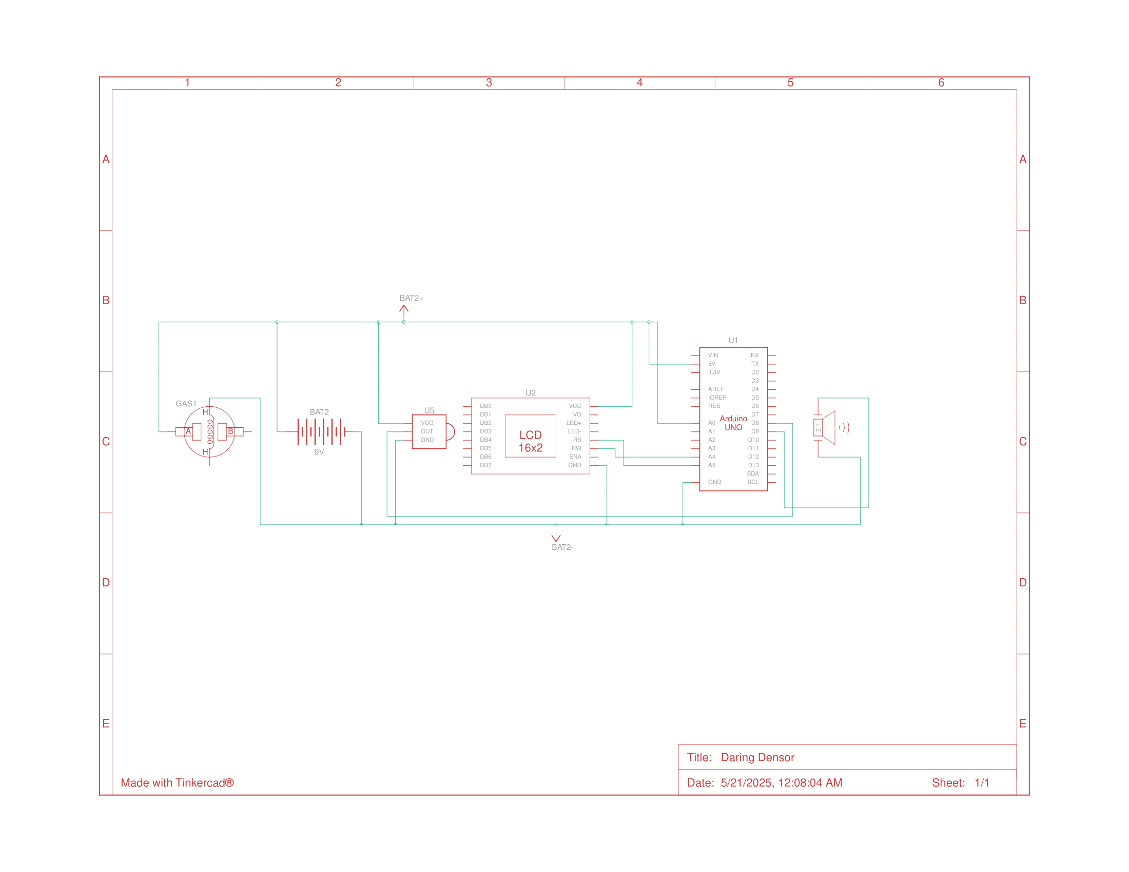
Diagrama

Hardware Design

Tabel componente

Nume componenta Model Protocol
Microcontroller Arduino Uno -
Senzor de fum MQ-2 ADC
Senzor de flacara IR Flame Sensor ADC
Display LCD LCD 16×2 I2C
Buzzer - PWM

Schema electrica

Download

Jurnal

  1. Alegere tema proiect: 30.04.2025
  2. Confirmare tema proiect: 30.04.2025
  3. Creare pagina OCW: 30.04.2025
  4. Completare pagina OCW: 30.04.2025
  5. Schema electrica OCW: 14.05.2025
  6. Terminare Hardware: 14.05.2025
  7. Terminare Software: 21.05.2025

Imagini

Bibliografie/Resurse

Listă cu documente, datasheet-uri, resurse Internet folosite, eventual grupate pe Resurse Software şi Resurse Hardware.

Export to PDF

pm/prj2025/vstoica/andrei_vlad.eftenie.txt · Last modified: 2025/05/30 11:13 by andrei_vlad.eftenie
CC Attribution-Share Alike 3.0 Unported
www.chimeric.de Valid CSS Driven by DokuWiki do yourself a favour and use a real browser - get firefox!! Recent changes RSS feed Valid XHTML 1.0